Surface artisanale / bureau technique – CTN 18, Plan-les-Ouates
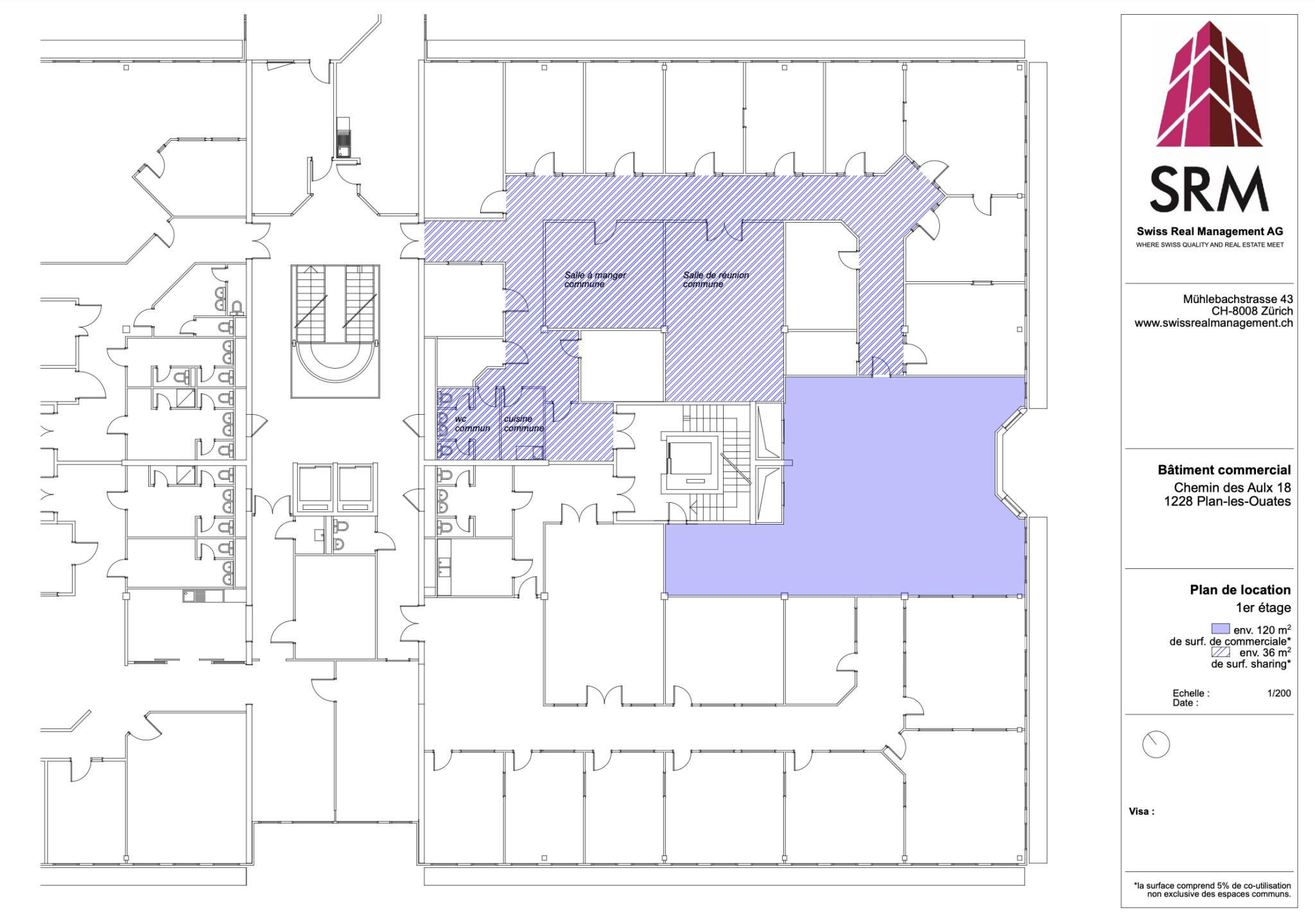
Situé au cœur du Campus CTN à Plan-les-Ouates, cet espace de 63 m² au 1er étage s’adresse aux artisans, indépendants et entreprises à la recherche d’un environnement professionnel flexible et collaboratif.
Le concept du projet repose sur une combinaison d’espaces privatifs et d’espaces partagés, favorisant les synergies entre locataires.
Surface disponible
• Surface d’env. 63 m²
• Accès à des espaces partagés :
o Cuisine équipée
o Salle de conférence
o Salle à manger / détente
Concept des espaces partagés
Les espaces communs sont accessibles à l’ensemble des locataires et intégrés dans le modèle locatif via une quote-part.
Conditions financières
• Loyer : CHF 290.– / m² / an
• Charges (chauffage + frais accessoires) : CHF 40.– / m² / an
• Charges espaces partagés (électricité, Wi-Fi, nettoyage) : CHF 40.– / m² / an
Les charges liées aux espaces partagés incluent l’utilisation et l’entretien des infrastructures communes, permettant de bénéficier de services mutualisés dans un cadre professionnel qualitatif.
Ce système permet de bénéficier d’équipements qualitatifs sans devoir les supporter individuellement.
Un environnement professionnel dynamique
Le CTN accueille un écosystème varié d’entreprises, notamment dans les domaines techniques, artisanaux et innovants. Le site favorise les synergies et offre un cadre de travail stimulant.
Caractéristiques du site
• Parkings en sous-sol disponibles (selon disponibilité)
• Bonne accessibilité en transports publics
• Services sur site : restaurant, hôtel, salle de sport
• Infrastructures logistiques : monte-charges, quais de déchargement, ascenseurs
Localisation
• Accès rapide à l’autoroute A1
• Proximité immédiate de la ZIPLO
• Bonne desserte en transports publics
Renseignements et conditions de location
Swiss Real Management Sàrl
Régie officielle du CTN
www.ctn.ch
Adresse
Chemin des Aulx 18
1228 Plan-les-Ouates
Trouvez plus de 139 biens